Industrial Repair Services
Stack Damper Slide Gate Fabrication

CLIENT
Industry-leading Manufacturer
PROJECT SCOPE
Engineering, Fabrication,Mechanical Installation, Industrial Electrical, Site Management, Procurement
INDUSTRY
Food & Beverage
LOCATION
Central Valley of California
Summary: The SilMan Specialty Trade Services team provided equipment repair services for a leading manufacturer in the food and beverage industry. The scope of work includes reverse engineering, fabrication, and replacement of stack damper slide gates for one of the client’s furnaces, which weigh nearly 4,000 lbs each.
Facility Care and Maintenance
The Ongoing Demand for Industrial Repair Services
Between the heat of production and the ferocity of the elements, exterior equipment takes a beating.
In this case, the dampers that allow the client’s sophisticated controls to precisely manage furnace temperatures were slowly beginning to fail. Specifically, the Slide Gates had become badly rusted and worn out, and would soon be approaching immobility.
The slide gates control the pressure in the furnace. The mechanical actuator is electronically controlled and operated by a team member.
Industrial Equipment Repair
Reverse Engineering and Fabrication
Due to the condition of the equipment, replacement, not repair, was the only solution.
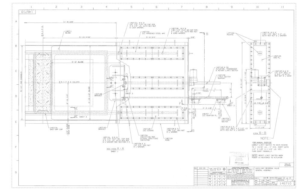
Initially installed in 1971, the manufacturer of the slide gate, Morgan Construction of Worcester, Massachusetts, is no longer in existence. With the help of the client’s engineering team, our team was able to unearth the design schematic in the company’s archives.
Discovering these documents was an adventure into the past, featuring meticulous pencil drawings and handwritten specifications.
Click image for a full-screen view of the drawing.
Speak to a key team member on this project

Meet Jeff Piazza
For more information about this project or related topics, contact Jeff by email or call directly at 925.984.0062.
You may also enjoy this article
Further complicating the situation, however, the drawing set did not include detail or shop drawings.
Because communication with the original manufacturer was impossible, and the lack of complete drawings, the only path forward was to reverse engineer and fabricate a replica of the existing equipment. Moreover, two stacks merge at this location which required the production of two slide gates.
Engineering and fabrication of the new gates took approximately two months. Additional hardware was also procured, including screwjacks, electrical motors and limit switches.
No downtime! Once the original slide gates were removed, the SilMan industrial repair services team fabricated and installed a temporary manual slide while in the field.
And finally, when the new slide gates were manufactured and requisite parts received, a complete system test was completed in the SilMan shop.
Photo Gallery
Industrial repair services deployed for this project include reverse engineering, fabrication, and mechanical – electrical installation.
Photo credit: Michael Fielden
Stack Damper Slide Gate Installation
Industrial Repair Services Team Onsite
Since the stacks are deep within the plant’s structure, a crane was required to both extract and install the pieces, each weighing nearly 4,000 lbs. However, the only position for the crane is in the company’s raw materials unloading area. Therefore, the installation was to be completed in one day, on a Saturday when there are no deliveries.
The crew arrived at 6:00 a.m. and worked steadily until nearly 6:00 p.m.
Each slide gate was installed, connected to controls, and tested in place, requiring a very patient schedule for the day and tight collaboration with the client’s team members.
The project was an unqualified success, as evident from the look of our crew in this end-of-day photo.

Self-Performance Drives Results
Metrics for Successful Industrial Repair Services
As always, the only metrics that matter in any project are 1) on time, 2) under budget and 3) the client is satisfied. All three were accomplished, but that is not the end of the story.
There are two other key elements that contributed to this outcome.
From Vendor to Partner: the commitment by all parties to nurture this relationship creates an environment of trust and productivity. Everybody benefits from transparency and authenticity.
Self-Performance: the unique value provided on this project is a result of the range of skills, knowledge, and experience that reside “Under One Roof” at SilMan. The seamlessly integrated performance of the team encompasses a diversity of skills and experience:
- Project Management & Procurement
- Engineering
- Fabrication
- Mechanical and Electrical installation
- Safety Management
- Site Management
This list rightly reflects the commitment that SilMan has made to continually expand and sustain in-house capabilities.
Industrial concerns who deploy a wide array of technologies and rely on high-performing infrastructure, recognize the tremendous value of a multi-skilled partner available with a single phone call.
Key team members and partners for this industrial repair services project include:
- Scott Wattenbarger, account management & site supervisor
- Justin Neely, electrical installation
- Northern California Millwrights, Local #102
- IBEW Local 595, electricians
- American Crane Rental
- Duncan Bros. Inc., steel fabrication
Ongoing Industrial Services
The value of relationships in the Industrial Community
This association is also a shining example of SilMan’s vision of “Community” in action. It begins internally – building and sustaining our in-house capabilities – and naturally reaches out to the industrial sector to build authentic, profitable relationships.
SilMan Industries has enjoyed a long relationship with the client, a leading manufacturing operation in the food and beverage industry. This ongoing collaboration includes a wide-ranging package of industrial repair and maintenance services that keep their infrastructure and production line running smoothly. 24/7/365.
In healthy relationships, everyone thrives.
Learn more about SilMan’s commitment to community and collective success.
About SilMan Industries
SilMan Industries (formerly SilMan Construction) is based in San Leandro, California, with Engineering and Field Operations offices in Tupelo, Mississippi. The firm provides integrated turnkey solutions in the Industrial, Manufacturing, Distribution, and Public Works sectors.
Notably, in 2010, SilMan Industries was contracted to dismantle and transport the NUMMI assembly line in Fremont, Calif., transport the equipment, and reinstall the system in Blue Springs, Miss., establishing Toyota Motor Manufacturing Mississippi (TMMMS). This high-visibility project ignited the company’s meteoric growth, laying the foundation for SilMan’s national service area.
For more information, please visit www.silmanindustries.com/about.











